The Butterfly Cabin: Medium Variant

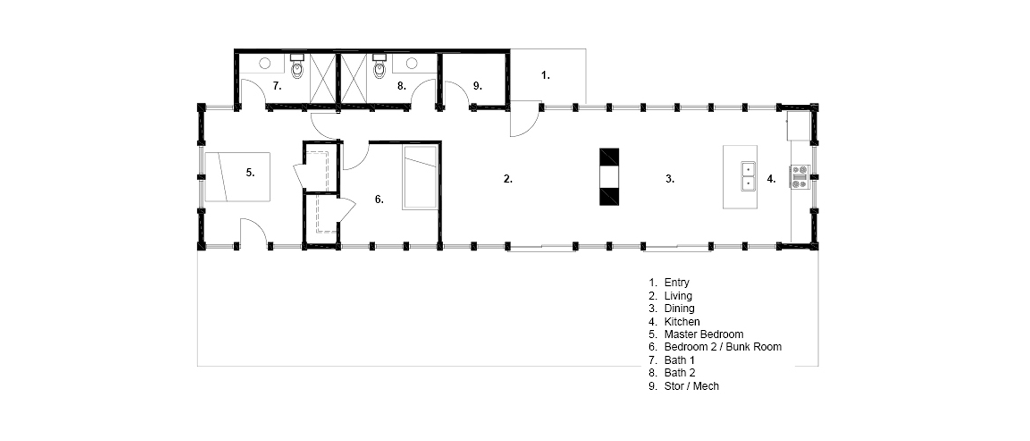
Originally designed as 1 of 3 simple schematic concept cabins for a proposed development in Alaska. This butterfly roofed structure contains two bedrooms and a large open Great Room + Kitchen. Copious windows provide for expansive views of the proposed mountain side location. A massive concrete see-through fireplace occupies a prominent location dividing the Living from Dining + Kitchen areas. Integral steel shelves are inserted into the sides of the firebox and provide a place to display artwork, pictures, etc

advanced text here

Software:

SketchUp
AutoCAD
Lumion
Photoshop

Download 3D Model:

3DWarehouse

Category
arch